Wohnimmobilie > Einfamilienhaus
Zu Verkaufen

Königsheide Bremerhaven |Einfamilienhaus mit Anbau in ruhiger Lage an der Stadtgrenze zu Langen

27578 Bremerhaven
269.000 €

BKW44
1930
132 m²
680 m²
5,5
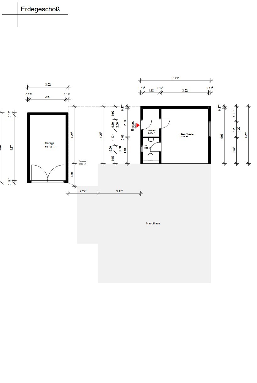
  • Dieses Einfamilienhaus mit Anbau bietet ca. 132 m² Wohnfläche und befindet sich auf einem großzügigen Grundstück mit etwa 680 m². Die Immobilie verfügt über insgesamt 5,5 Zimmer, die vielseitig nutzbar sind – ideal für Wohnen, Schlafen, Arbeiten oder als Kinderzimmer. Ergänzt wird das Raumangebot durch ein Badezimmer mit Tageslicht sowie zwei separate WCs.

    Ein besonderer Pluspunkt ist der gepflegte Garten mit südlicher Ausrichtung, der viel Sonne und zahlreiche Nutzungsmöglichkeiten für Freizeit und Erholung bietet. Sowohl der Keller als auch der Dachboden stehen zur Verfügung und bieten reichlich zusätzlichen Stauraum oder Platz für Hobbys, Lagerung oder Technikräume.

    Besonders einladend ist die windgeschützte, gemütliche, nicht einsehbare Terrasse. Hier können vor allem im Sommer schöne, gemeinsame Grillabende verbracht werden.

    Ein weiteres Highlight ist der Anbau, dieser verfügt über einen eigenen Eingang und überzeugt mit 1,5 Zimmern sowie einem eigenen WC und gestaltet sich perfekt für Gäste, oder Heranwachsende.

    Für die Wärmeversorgung sorgt eine Gasheizung aus dem Jahr 2018, die durch eine Solarthermieanlage unterstützt wird. Ein zentraler Warmwasserspeicher ist ebenfalls vorhanden und gewährleistet eine energieeffiziente Warmwasserversorgung. Die Kombination aus moderner Heiztechnik und solider Gebäudesubstanz schafft gute Voraussetzungen für dauerhaft überschaubare Betriebskosten.

    Die verbauten Holzfenster sind im Erdgeschoss mit Rollläden ausgestattet, was zusätzlichen Sonnen- und Sichtschutz bietet. Eine Garage gehört ebenfalls zur Immobilie und ermöglicht komfortables Parken oder das sichere Unterstellen von Fahrrädern und Gartengeräten.

    Dieses Haus eignet sich ideal für Menschen, die Wert auf eine funktionale Aufteilung, einen sonnigen Garten, zusätzliche Nutzflächen und eine solide technische Ausstattung legen. Diese Immobilie bietet eine ideale Basis für komfortables Wohnen im eigenen Zuhause.
  • Flächen

    • Wohnfläche: 131,58 m²
    • Grundstücksfläche: 680 m²
    • Nutzfläche: 76,27 m²
    • Zimmer insgesamt: 5,5
    • Schlafzimmer: 4
    • Badezimmer: 1
    • Separate WCs: 2
    • Etagen: 2
    • Stellplätze: 1
    • Garagenstellplätze: 1
    • Terrassen: 1

    Zustand & Erschließung

    • Baujahr: 1930
    • Zustand: gepflegt
    • Keller: voll unterkellert

    Sonstiges

    HRE Immobilien hat sich auf die Vermarktung von Häusern, Wohnungen und Grundstücken spezialisiert.

    Durch eine fundierte Ausbildung unserer Mitarbeiter können wir Ihnen eine umfassende Beratung in allen Fragen rund um die Immobilie geben.

    Vorab bewertet unser Dipl. Sachverständiger Ihre Immobilie kostenlos für Sie. Sprechen Sie uns gerne an.

    Für die im Exposé gemachten Angaben übernehmen wir keine Gewähr. Die gemachten Angaben basieren ausschließlich auf Informationen unseres Auftraggebers. Somit übernehmen wir keine Haftung oder Gewähr für die Vollständigkeit, Richtigkeit und Aktualität dieser Angaben. Nachträgliche Änderungen und Korrekturen im Exposé behalten wir uns vor. Irrtum und Zwischenverkauf bleibt vorbehalten. Gerne erhalten Sie von uns weitere Informationen zum Objekt und dem Eigentümer.
    • Immobilie ist verfügbar ab: Nach Vereinbarung
  • – 680m² Grundstück

    – Massives Einfamilienhaus aus 1930

    – ca. 132m² Wohnfläche

    – 4 Zimmer

    – 1 Badezimmer, 1WC

    – Keller mit Waschküche

    – Dachboden

    – Rollläden im EG

    – Anbau mit eigenem Eingang (1,5 Zimmer, 1 WC)

    – Garage

    – Garten Richtung Süden gerichtet

    – Gasheizung aus 2018

    – Warmwasserspeicher

    – Solartherme

    – Holzfenster

    • Befeuerung: Gas, Solar
    • Kamin
    • Energieausweis-Art: Bedarf
    • Energieausweis gültig bis: 12.08.2035
    • Endenergiebedarf: 193,60 kWh/(m²*a)
    • Primärenergieträger: Gas
    • Energieeffizienzklasse: F
    • Baujahr (Energieausweis): 1930
    • Energieausweis-Jahrgang: ab Mai 2014
    • Energieausweis-Gebäudeart: Wohngebäude
  • Dieses Einfamilienhaus liegt in einer besonders ruhigen und familienfreundlichen Wohnlage im Bremerhavener Ortsteil Königsheide. Die Umgebung ist geprägt von gepflegten Einfamilienhäusern, weiten Grundstücken und wenig Verkehr – ideal für Familien mit Kindern und Paare, die ein sicheres und entspanntes Wohnumfeld suchen. Durch die erhöhte Lage auf der Hohen Lieth liegt das Gebiet sturmflutsicher und bietet ein zusätzliches Maß an Sicherheit. Naturliebhaber schätzen die Nähe zum Wasserwerkswald und weiteren Grünflächen, die zu Spaziergängen und Freizeitaktivitäten im Freien einladen. Gleichzeitig überzeugt die Lage mit einer guten Infrastruktur: Einkaufsmöglichkeiten, Schulen, Kindergärten sowie ärztliche Versorgung befinden sich in kurzer Entfernung und sind bequem erreichbar. Auch die Anbindung an den öffentlichen Nahverkehr ist gegeben. Königsheide vereint naturnahes, ruhiges Wohnen mit alltagsnaher Versorgung – perfekt für alle, die Wert auf Lebensqualität, Geborgenheit und ein harmonisches Wohnumfeld legen.

    • Kaufpreis: 269.000 €
    • Käuferprovision: 3,57% inkl. MwSt.

Dein Kontakt bei uns

Seymen Erer
Hansa Real Estate Gmbh
Hohentorsheerstraße 49/51, 28199 Bremen